Обяви За нас Контакти
Продава 3-СТАЕН
град София, Манастирски ливади
395 200 €
772 944.02 лв.

(2 102 €, 4 111.15 лв./m2)
Цената е с включено ДДС
История на цената
Публикувана в 15:33 на 13 ноември, 2025 год.
Обявата е посетена 514 пъти.
Площ:
188 m2
Етаж:
10-ти от 10
Газ:
ДА
Строителство:
Тухла, 2025 г.

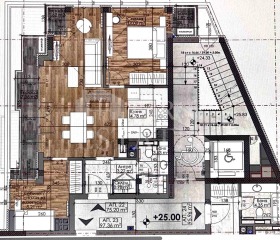
Описание на имота:


АКТ 16 от 06.2025

Просторни тераси и живописна, нескриваема гледка към Витоша. Най-доброто изложение юг и запад.
Площ от 167.11 кв м.

Осигурена професионална безплатна услуга за цялостния процес на избор на банка и кредитиране при покупка на имот.

First Estates представя нова многофамилна жилищна сграда в кв. Манастирски ливади Изток.

Предлагаме ви, апартамент 25 от тази модерна сграда, разположен на девети етаж (десети жилищен).
Имотът е със следното разпределение::
входно антре, коридор, с малък склад
2 баня с тоалетна
дневна с трапезария и обособен кухненски пасаж с една тераса от 7кв.м. и една 2кв.м
една малка преходна спалня(може и да се ползва за кабинет) с излаз на голямата тераса на дневната
втора преходна спалня с балкон
Сградата отговаря на всяко търсене за комфортен начин на живот в големия град.
Атрактивна като локация, с удобен градски транспорт, близо до супермаркети, търговски центрове, училища и детски градини.
Южен парк е на 10 мин.пешеходно разтояние, както и бул. България - за бърза връзка с останалата част на града.
Околовръстен път също не е далеч и излизането от града е лесно.
В имота се помещават 26 жилищни апартамента, 30 гаража и пет паркоместа в дворната зона.
На всеки етаж (с изключение на последния) са разположени по 3 тристайни непреходни и светли апартамента.

Богатия професионален опит на инвеститора е доказан от множеството построени сгради и стотици доволни клиенти.
Гарантирано качество и луксозно изпълнение:
метална конструкция и тухли 25см
окачена фасада проектирана в съвременен дизайн с изчистени линии,
контрол на достъпа,
общи части с гранит
асансьор KONE
френски прозорци
дограма немска 5 камерна с троен стъклопакет
изолация 10см
отоплението е на Газ

Ако нашето предложение представлява интерес за Вас, не се колебайте да се свържете с нас, за оглед и информация както за този имот, така и за други свободни имоти в сградата.

За повече информация и организиране на оглед, моля свържете се с нас на телефон: 0 700 15 15 1 и цитирайте код на офертата: 2-11739
Особености
Тухла
За контакт:
0876024252
Брокер:
Dilyana Statelova
070015151
Офис: Московска 27 А
Още оферти от брокера: Продава | Дава под наем | Купува | Наема
Агенция:
ФЪРСТ ЕСТЕЙТС
070015151
ФЪРСТ ЕСТЕЙТС logo
Медал за прослужено време
В imot.bg от 2014 г.
first_estates.imot.bg
Адрес:
област София, гр. София, ул. 'Московска' 27А, ет.1, ап.4
http://first.bg
ИЗПРАТИ ЗАПИТВАНЕ
ИЗПРАТИ ЗАПИТВАНЕТО

Продава 3-СТАЕН
град София, Манастирски ливади
Обява: 1c176304082837380

395 200 €
772 944.02 лв.
История на цената
(2 102 €, 4 111.15 лв./m2)

Цената е с включено ДДС
ЗАПАЗИ ОБЯВАТА

Местоположение: град София, Манастирски ливади

Допълнителни данни за имотите в района и сравнение с други райони

Покажи

Период

* Средните цени са определени чрез медианна стойност